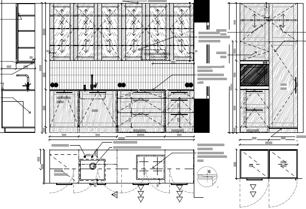
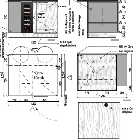
APARTMENT at VESIVÄRAVA str.
Algupärasest kahest väiksest eraldi korterist on projekteeritud üks suurem neljaliikmelise pere soove arvestav mugav linnakorter. Sisekujundus sai sobiv vanasse puitmajja – hubane ja veidi romantiline.
Korter on ehitusjärgus.
KAKS VÄIKEST KORTERIT ENNE PROJEKTEERIMIST

SUUR KORTER (100,5m2) PEALE SISEARHITEKTUURSET PROJEKTEERIMIST





